东太湖论坛

搜索
 找回密码
 注册
在本论坛发布谣言、色情、反动、侵权等内容将依法严肃处理,区公安局举报电话:0512-110 。 申请删帖
查看: 197|回复: 2

[投诉] 吴模家园停车位改造方案不合理

[复制链接]
发表于: 2025-10-10 11:58 来自- 中国江苏苏州 | 显示全部楼层 |阅读模式
   
               

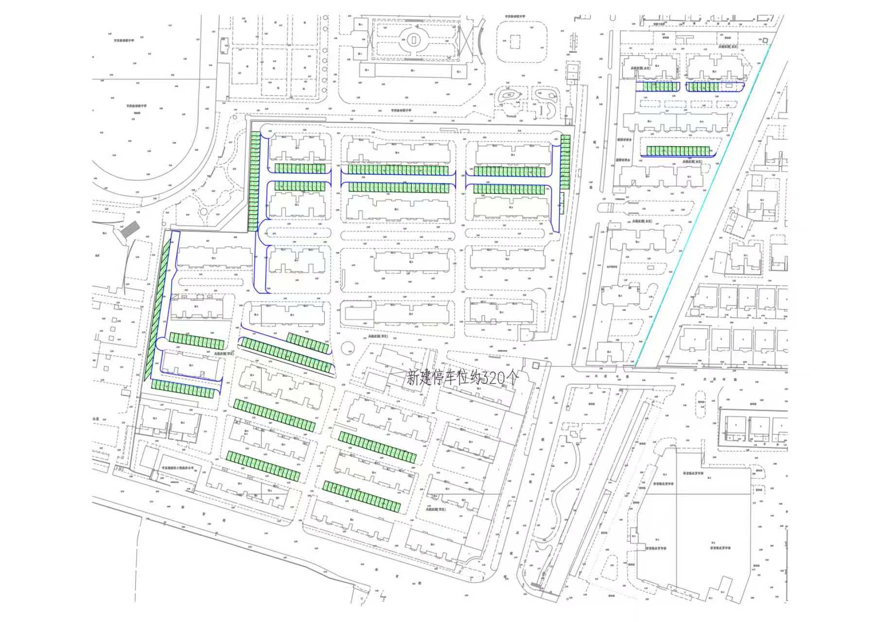
每幢楼下都可以设计部分停车位,却部分闲置,让最后一排的绿化带全部改造成停车场,房子周边一圈全是硬化的水泥路停车位,这样子设计让最后一排的住户怎么居住,光是夜晚的噪音就让人不敢想,这个设计方案的人真是猪脑子

 

   
            
 楼主| 发表于: 2025-10-10 11:59 来自- 中国江苏苏州 | 显示全部楼层
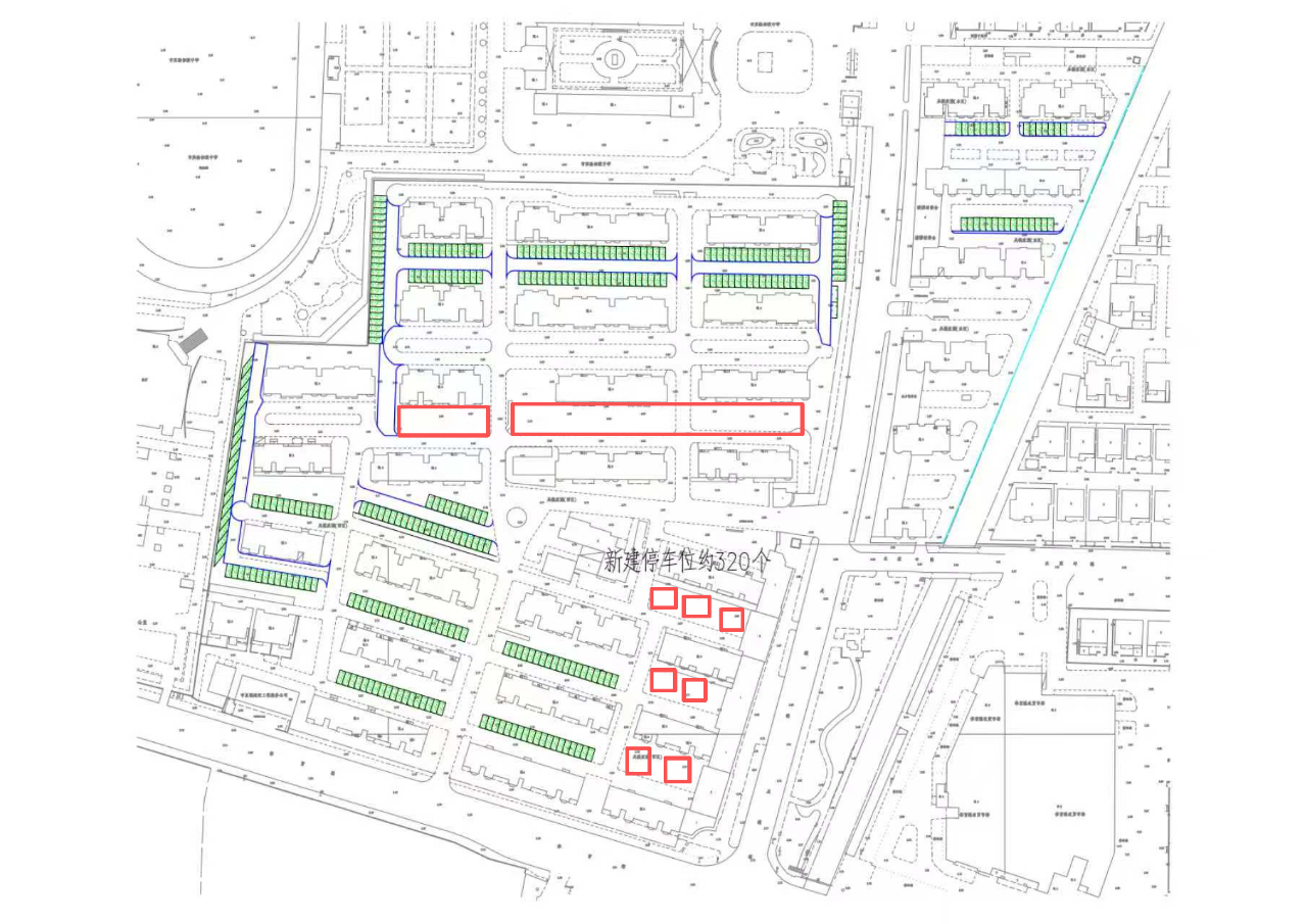
圈红的地方都可以改造停车位,却偏偏闲置,让最后一排的住户一点绿化也没有
20251010120032front2_0_486299_FqCjp-pPx7T2IRwxTt-LvtFpQW7a.png
发表于: 2025-10-10 16:51 来自- 中国江苏苏州 | 显示全部楼层
不会因为一个的意见而改变的 ,
你要联合小区60%的业主,一起来提出异议才有用。
在本论坛发布谣言、色情、反动、侵权等内容将依法严肃处理,区公安局举报电话:0512-110 。 删帖申请表
您需要登录后才可以回帖 登录 | 注册

本版积分规则

客户端|小黑屋|手机版|吴江新闻网 ( 苏ICP备2022046825号 苏新网备2008040号 )

GMT+8, 2025-10-10 18:05 , Processed in 0.017489 second(s), 13 queries , MemCache On.

Powered by Discuz! X3.4

© 2001-2013 Comsenz Inc.

快速回复 返回顶部 返回列表
东太湖论坛中发表的内容仅代表网民个人的观点,并不代表东太湖论坛支持或反对此观点。
如果在论坛中有网民发表的不实内容,侵害到您的合法权益,本论坛并不承担相关的责任。
如果您认为情节严重,您可以向警方报案。我们按法定程序积极配合,维护您的合法权益。
投诉电话: 在线投诉
电子邮箱:
点击 >> 删帖申请
苏公网安备 32050902100654号 互联网违法和不良信息举报中心